
Masina de ridicare electrica cu ridicare electrica de tip HD
Macaraua monoblocă europeană este un echipament compact de ridicare proiectat și fabricat în strictă conformitate cu standardele FEM și DIN, care, cu tehnologie avansată și design frumos. Împărțită în tip general și pe tipul de suspensie, susținând utilizarea unui dispozitiv electric de ridicare standard european, adecvat pentru manipularea materialelor din atelier și a depozitului, asamblarea cu precizie a pieselor mari și alte locuri.
Masina de ridicare electrica cu ridicare electrica de tip HD
Descriere scurta:
Macaraua monoblocă europeană este un echipament compact de ridicare proiectat și fabricat în strictă conformitate cu standardele FEM și DIN, care, cu tehnologie avansată și design frumos. Împărțită în tip general și pe tipul de suspensie, susținând utilizarea unui dispozitiv electric de ridicare standard european, adecvat pentru manipularea materialelor din atelier și a depozitului, asamblarea cu precizie a pieselor mari și alte locuri.

Se poate folosi pe scară largă în fabricarea de mașini, metalurgie, petrol, petrifacție, port, feroviar, aviație civilă, alimente, fabricarea hârtiei, construcții, ateliere pentru industria electronică, depozite și alte situații de manipulare a materialelor, aplicate la manipularea materialelor care necesită o poziționare precisă, situații de asamblare precisă a componentelor mari.

Imagini detaliate:

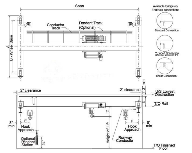
Schița desenului:

Parametri tehnici:
deschidere | m | 7.5 | 10.5 | 13.5 | 16.5 | 19.5 | 22.5 | 25.5 |
Capacitate | T | 1 ~ 12.5t | ||||||
Greutate totală | kg | 1781 ~ 12086 | ||||||
Greutatea căruciorului | kg | 405 ~ 740 | ||||||
Max. Sarcină pe roți | kn | 13.5 ~ 90.94 | ||||||
Travel rail | P24 ~ P43 | |||||||
Viteza de ridicare | m / min | 0,8 / 5 | 0,8 / 5 | 0,8 / 5 | 0,8 / 5 | 0,8 / 5 | 0,8 / 5 | 0,8 / 5 |
Înălțimea de ridicare | m | ≥ 6 | ≥ 6 | ≥ 6 | ≥ 6 | ≥ 6 | ≥ 6 | ≥ 6 |
Puterea totală a motorului | kw | 4,31 | 4,31 | 4,31 | 4,31 | 4,67 | 4,67 | 4,67 |
Viteza macaralei | m / min | 3-30 | 3-30 | 3-30 | 3-30 | 3-30 | 3-30 | 3-30 |
Viteza căruciorului | m / min | 2-20 | 2-20 | 2-20 | 2-20 | 2-20 | 2-20 | 2-20 |
Datoria de serviciu | M5 / A5 | |||||||


English
slovenščina
Español
српски (ћирилица)
slovenčina
Latviešu
اردو
Português
हिंदी
hrvatski
Italiano
Svenska





